Муниципальное бюджетное общеобразовательное учреждение «Гимназия №90» Советского района г. Казани
Визитная карточка
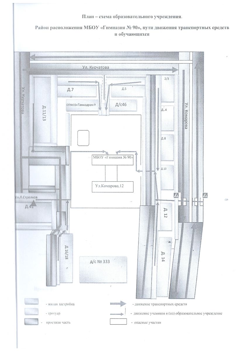
| Адрес: | 420087, г. Казань, ул. Комарова, д. 12 |
| Телефон: | +7(843)-298-90-21 |
| E-Mail: | S90.kzn@tatar.ru |
| Министерство: | Министерство образования и науки Республики Татарстан |
| Короткое название: | МБОУ «Гимназия №90» |
| Руководитель: | Шафеева Гузель Харисовна |
| Год основания учреждения: | 1970 |
| У нас учатся: | 935 учеников (в том числе 1 иностранный гражданин) |
| У нас учат: | 46 учителей |
Дорожная безопасность
Паспорт дорожной безопасности (стр.1, стр.2, стр.3, стр.4, стр.5, стр.6, стр.7)
Профилактика дорожно-транспортного травматизма
Письмо Министерства образования и просвещения РФ "Об участие в межрегиональных интернет-проектах"













