МБОУ «Русско-татарская средняя общеобразовательная школа №136» Приволжского района города Казани
Визитная карточка
| Адрес: | 420059, РТ, г. Казань, ул. Оренбургский тракт, д. 4 |
| Телефон: | +7(843)-277-80-19 |
| E-Mail: | S136.kzn@tatar.ru |
| Министерство: | Министерство образования и науки Республики Татарстан |
| Короткое название: | МБОУ "Школа №136" |
| Руководитель: | Корепанова Ирина Камилевна |
| Год основания учреждения: | 1962 |
| У нас учатся: | 577 ребенок, из них 5 иностранных граждан |
| У нас учат: | 36 учителей |
Предписание об устранении административного правонарушения
/upload/storage/org2314/files/ПОСТАНОВЛЕНИЕ 43-13-51 1.jpg
/upload/storage/org2314/files/ПОСТАНОВЛЕНИЕ 43-13-51 2.jpg
/upload/storage/org2314/files/ПОСТАНОВЛЕНИЕ 43-13-51 3.jpg
/upload/storage/org2314/files/ПОСТАНОВЛЕНИЕ 43-13-51 4.jpg
/upload/storage/org2314/files/ПОСТАНОВЛЕНИЕ 1473-С 1.jpg
/upload/storage/org2314/files/ПОСТАНОВЛЕНИЕ 1473-С 2.jpg
/upload/storage/org2314/files/ПОСТАНОВЛЕНИЕ 1473-С 3.jpg
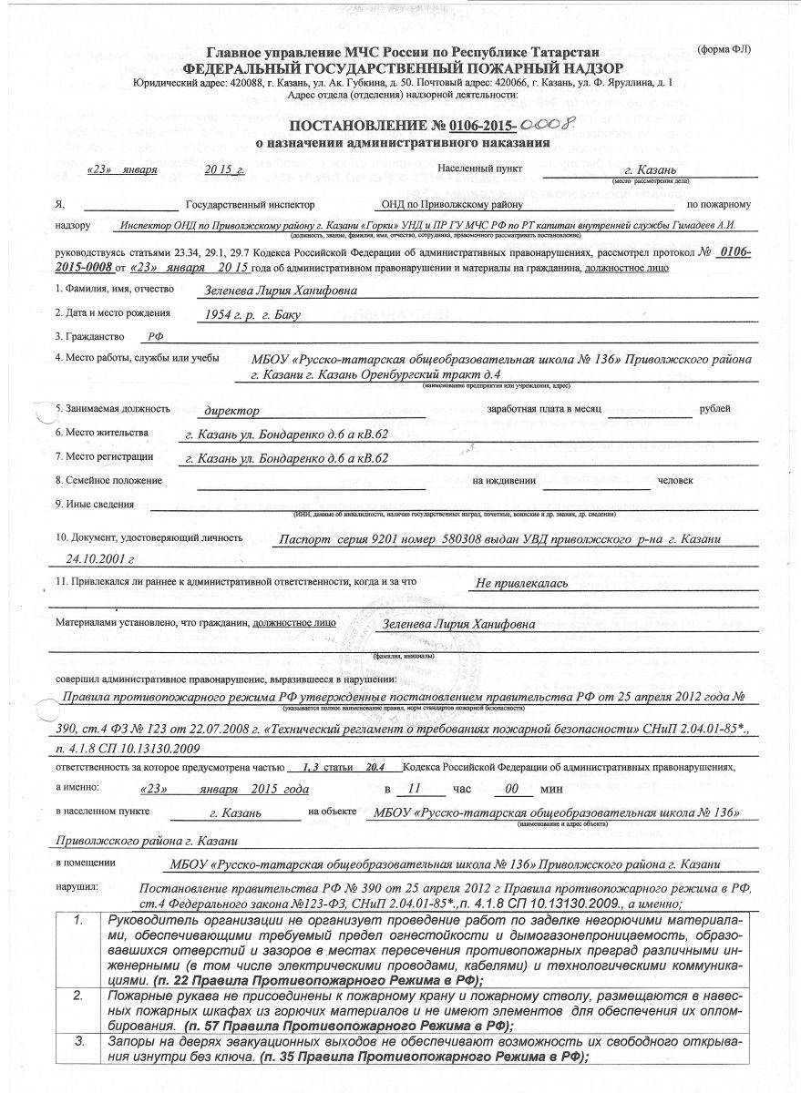
/upload/storage/org2314/files/ПОСТАНОВЛЕНИЕ0106-2015-0008 1.jpg
/upload/storage/org2314/files/ПОСТАНОВЛЕНИЕ0106-2015-0008 2.jpg
/upload/storage/org2314/files/Предписание1 (2).jpg
/upload/storage/org2314/files/Предписание2 (2).jpg




